ПРОЕКТ БАНИ ИЗ ГАЗОБЕТОНА "AUTOBAN" - YouTube
Баня из газобетона: лучшие проекты + пошаговая ...
Проект жилого дома из газобетона - «Баня-1»
Готовый проект бани из газобетона с чертежами
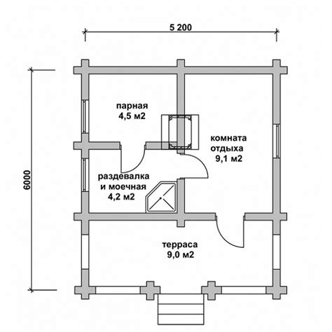
Проект современной бани из газобетона с террасо...
Бани из газоблоков проекты (44 фото) - фото - к...
Проекты и строительство бани из газобетона свои...
Бани, гараж из газобетона: плюсы и минусы, прое...
Проект бани из газобетона AS-2000-9 с мансардой...
ТИПОВОЙ ПРОЕКТ БАНИ ИЗ ГАЗОБЕТОНА AUTOBAN 18м2 ...
Строительство бани из газобетона
Готовый проект одноэтажной бани из газобетона с...
Проект современной бани из газобетона - 97 фото
Строительство бани из газобетона своими руками ...