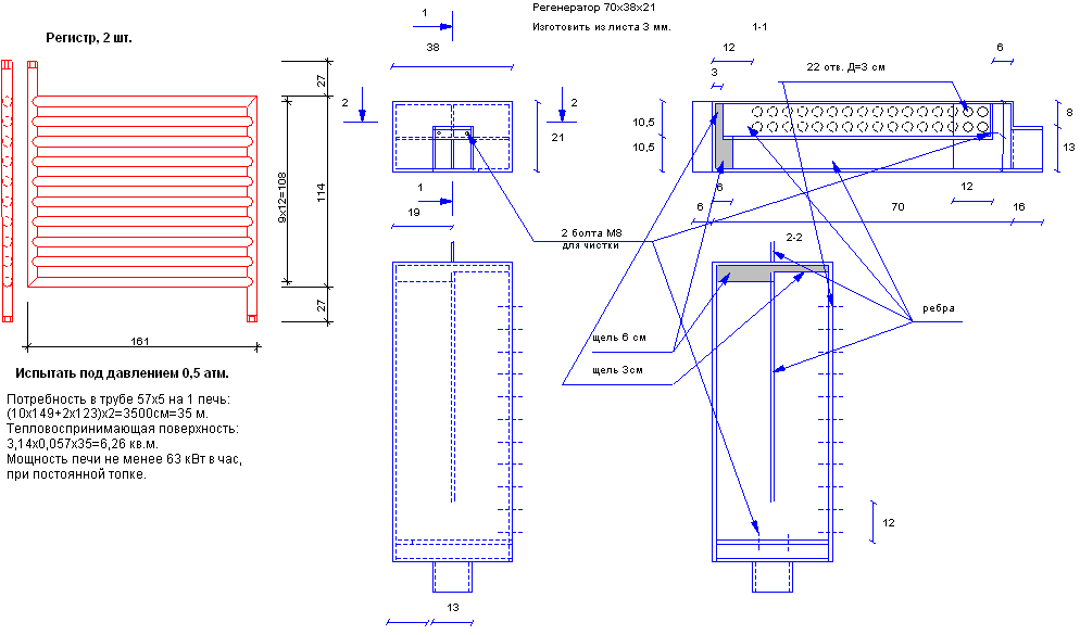
КИК 63 кВт - Печи Кузнецова

КИК 63 кВт - Печи Кузнецова