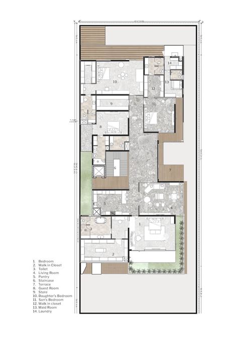
VC-164/6, Panchkula, India by Studio Ard|Houses
Star Wars Vc #164 Cara Dune | Envío gratis
Миксер Viconte VC-347 | отзывы
Мультипекарь VICONTE vc 164 Описание и характер...
Вафельница Viconte VC-164, черный - купить по в...
Viconte Орешница Viconte VC-161 черный . купить...
Вафельница Viconte VC-164, черный, черный - куп...
STAR WARS VC164 Cara Dune (2019) - The Vintage ...
Вафельница Viconte VC-164, белый - купить по вы...
Viconte VC-164 Электровафельница. Мощность 900 ...
Парогенератор Viconte VC-4322, паровой удар до ...