DEKraft УЗО 4P 63А 30мА - купить с доставкой по...
ГРЩ 63А + АВР - YouTube
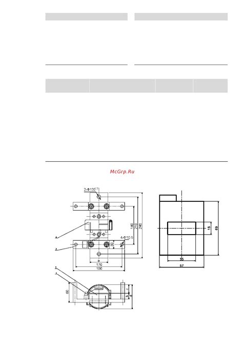
DEKraft АВР-305-3P-630A-I [12/17] Установка уст...
Автоматический выключатель DEKraft 11068DEK ВА1...
Уред за измерване на мощността, 63A - eMAG.bg
УЗО Dekraft УЗО-03 63А 300 мА 4P тип AC 6 кА ко...
Автоматический выключатель DEKraft ВА-103 3P 3А...
Обзор комплексных решений DEKraft для цифровиза...
Автоматический выключатель DEKraft ВА-103 1P 25...
Автоматический выключатель 3P DEKraft 63А: купи...
Дефекнотокова защита 63 ампера | Инструменти | ...
Купить Автоматический выключатель DEKraft АВ ВА...
Автоматический выключатель DEKraft 11060DEK ВА1...
DEKraft Вилка электрическая 63А купить на OZON ...
Купить Автоматический выключатель Dekraft BA-10...
Барилгын Материалын Нэгдсэн Сан
Выключатель DEKraft купить по лучшей цене с дос...
Автоматический выключатель DEKraft / ДеКрафт ВА...
Купить автомат ва-101-3p-63а-с dekraft в интерн...
DEKraft ВА-330 Расцепитель независимый 230В РН-332
Dekraft Differential Circuit Breaker 103-6ка-1n...
DEKraft ВА732-3P-2500A-D-H [21/36] Общие габариты
DEKRAFT Выключатель дифференциального тока (УЗО...
Купить Выключатель автоматический DEKraft ВА-10...
Drzwi zewnętrzne DB 63a | Barański Drzwi
Автоматический выключатель DEKraft ВА-105 3P 63...
Dekraft Выключатель дифференциального тока (УЗО...
Купить DEKraft Автоматический выключатель 3Р 40...
DEKraft ВА-335А Установка внутренних аксессуаро...
Автоматический выключатель DEKraft 11084DEK ВА1...
Dekraft Автоматический выключатель ВА105-3P-016...